
Wohnen und Arbeiten,
wo Urfahr am lebendigsten ist -
Wohnen und Arbeiten,
wo Urfahr am lebendigsten ist -
Wohnen und Arbeiten,
wo Urfahr am lebendigsten ist -
direkt am Grünmarkt.
direkt am Grünmarkt.
direkt am Grünmarkt.
Zentral im
grünen


[02] IM zentrum von althurfahr
28 Eigentumswohnungen und zwei großzügige Geschäftsflächen im Erdgeschoss - direkt am wöchentlichen Grünmarkt in Alt-Urfahr. Zwei markante Baukörper, ein durchdachtes Konzept: hohe Frequenz, beste Sichtbarkeit und ein Standort, der sowohl zum Wohnen als auch zum Arbeiten überzeugt.
28 Eigentumswohnungen und zwei großzügige Geschäftsflächen im Erdgeschoss - direkt am wöchentlichen Grünmarkt in Alt-Urfahr. Zwei markante Baukörper, ein durchdachtes Konzept: hohe Frequenz, beste Sichtbarkeit und ein Standort, der sowohl zum Wohnen als auch zum Arbeiten überzeugt.
28 Eigentumswohnungen und zwei großzügige Geschäftsflächen im Erdgeschoss - direkt am wöchentlichen Grünmarkt in Alt-Urfahr. Zwei markante Baukörper, ein durchdachtes Konzept: hohe Frequenz, beste Sichtbarkeit und ein Standort, der sowohl zum Wohnen als auch zum Arbeiten überzeugt.



Gewerbeflächen mit Frequenz - Zwei Geschäftsflächen im Erdgeschoss: 95 m² und 346 m², direkt am Urfahraner Grünmarkt mit täglichem Publikumsverkehr. Beste Sichtbarkeit, Tiefgaragenstellplätze, Neubaustandard. Geeignet für Gastronomie, Gesundheit, Einzelhandel oder Dienstleistung.
Gewerbeflächen mit Frequenz - Zwei Geschäftsflächen im Erdgeschoss: 95 m² und 346 m², direkt am Urfahraner Grünmarkt mit täglichem Publikumsverkehr. Beste Sichtbarkeit, Tiefgaragenstellplätze, Neubaustandard. Geeignet für Gastronomie, Gesundheit, Einzelhandel oder Dienstleistung.
Grünmarkt
|
Am Abend
[02] Das Projekt im Überblick
Samstag früh zum Bauernmarkt. Mittags in der City. Abends auf der Terrasse mit Blick über Urfahr. - Das ist Wohnen am Grünmarkt.
Samstag früh zum Bauernmarkt. Mittags in der City. Abends auf der Terrasse mit Blick über Urfahr. - Das ist Wohnen am Grünmarkt.
Samstag früh zum Bauernmarkt. Mittags in der City. Abends auf der Terrasse mit Blick über Urfahr. - Das ist Wohnen am Grünmarkt.

Allgemeines
2025

Allgemeines
2025

Wohnungen
2025

Wohnungen
2025

Wohnungen
2025

Ausstattung
2025

Ausstattung
2025

Ausstattung
2025
[03] Angebot
Unsere Geschäfts/Wohnflächen
Von der kompakten Stadtwohnung bis zur großzügigen Familienwohnung - und zwei Geschäftsflächen in Top-Frequenzlage direkt am Grünmarkt. Ideal für Einzelhandel, Gastronomie oder Dienstleister, die sichtbar sein wollen.
GESCHÄFTSFLÄCHEN
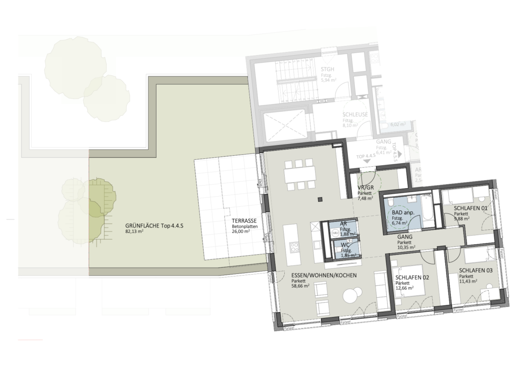
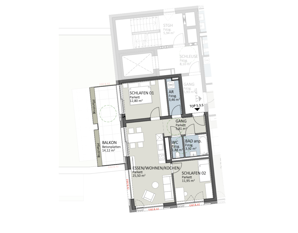
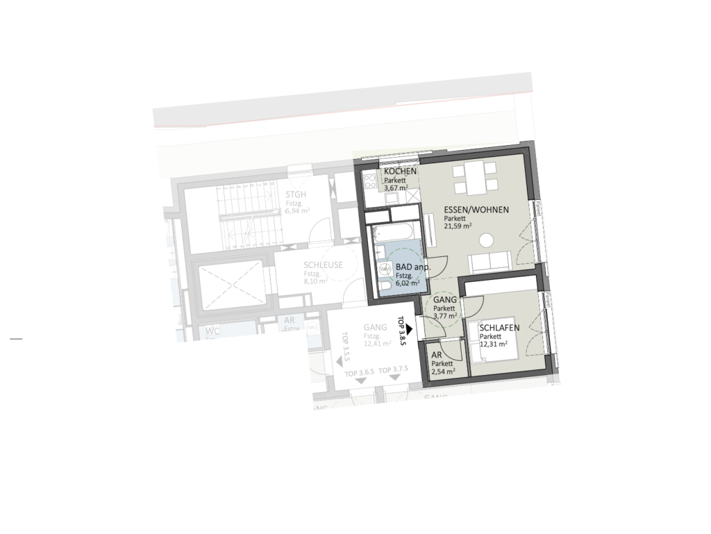
WOHNFLÄCHEN 30-50M²
WOHNFLÄCHEN 50-80M²
WOHNFLÄCHEN AB 80M²


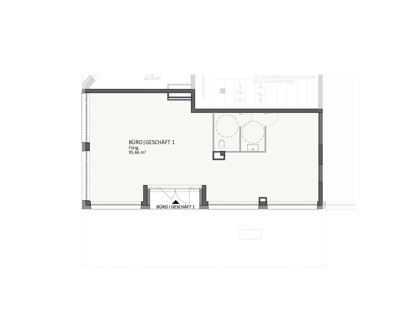
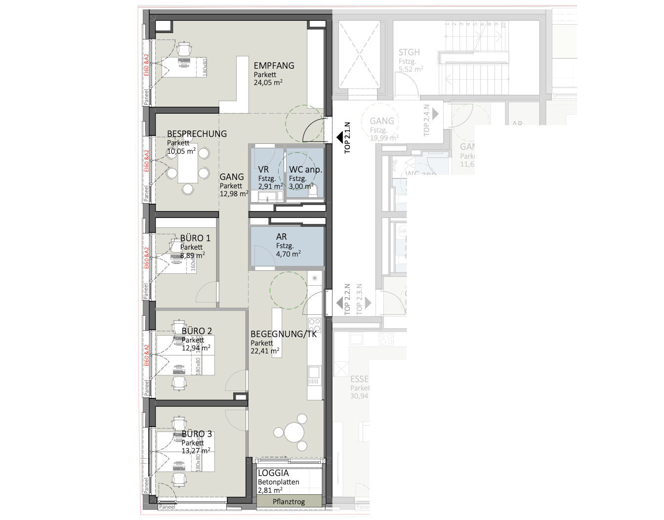
Büro / Geschäft 1
[01]
Fläche: 95,66 m²


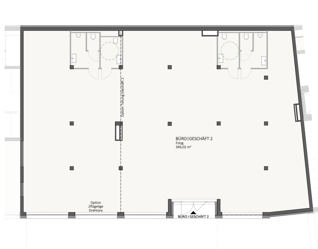
Büro / Geschäft 2
[02]
Fläche: 346,02 m²


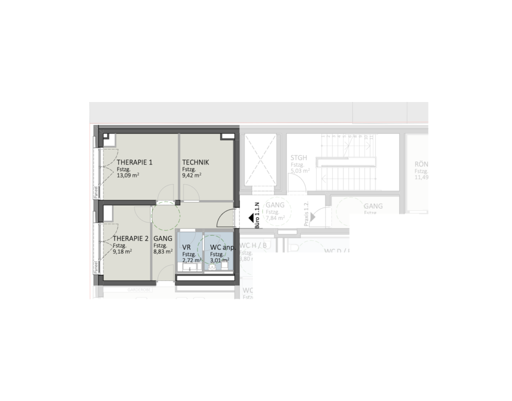
Büro 1.1.N
[03]
VERKAUFT Büro 1: 13,09 m² Büro 2: 9,18 m² Technik: 8,42 m² Gang: 8,83 m² VR: 2,72 m² WC: 3,01 m² FLÄCHE: 46,25 m²


Praxis 1.2.S
[04]
Fläche: 496,17 m²


Büro 1.3.S
[05]
VERKAUFT Eingang: 7,63 m² Umkleide: 4,86 m² Technik fein: 16,11 m² Technik grob: 16,29 m² Technik sehr grob: 16,61 m² Lager/Technik: 10,80 m² VR: 3,23 m² WC D: 3,37 m² WC H: 3,48 m² Aufenthalt: 11,21 m² Büro: 11,75 m² FLÄCHE: 105,34 m²


Büro / Geschäft 1
[01]
Fläche: 95,66 m²


Büro / Geschäft 2
[02]
Fläche: 346,02 m²


Büro 1.1.N
[03]
VERKAUFT Büro 1: 13,09 m² Büro 2: 9,18 m² Technik: 8,42 m² Gang: 8,83 m² VR: 2,72 m² WC: 3,01 m² FLÄCHE: 46,25 m²


Praxis 1.2.S
[04]
Fläche: 496,17 m²


Büro 1.3.S
[05]
VERKAUFT Eingang: 7,63 m² Umkleide: 4,86 m² Technik fein: 16,11 m² Technik grob: 16,29 m² Technik sehr grob: 16,61 m² Lager/Technik: 10,80 m² VR: 3,23 m² WC D: 3,37 m² WC H: 3,48 m² Aufenthalt: 11,21 m² Büro: 11,75 m² FLÄCHE: 105,34 m²


Büro / Geschäft 1
[01]
Fläche: 95,66 m²


Büro / Geschäft 2
[02]
Fläche: 346,02 m²


Büro 1.1.N
[03]
VERKAUFT Büro 1: 13,09 m² Büro 2: 9,18 m² Technik: 8,42 m² Gang: 8,83 m² VR: 2,72 m² WC: 3,01 m² FLÄCHE: 46,25 m²


Praxis 1.2.S
[04]
Fläche: 496,17 m²


Büro 1.3.S
[05]
VERKAUFT Eingang: 7,63 m² Umkleide: 4,86 m² Technik fein: 16,11 m² Technik grob: 16,29 m² Technik sehr grob: 16,61 m² Lager/Technik: 10,80 m² VR: 3,23 m² WC D: 3,37 m² WC H: 3,48 m² Aufenthalt: 11,21 m² Büro: 11,75 m² FLÄCHE: 105,34 m²


Büro / Geschäft 1
[01]
Fläche: 95,66 m²


Büro / Geschäft 2
[02]
Fläche: 346,02 m²


Büro 1.1.N
[03]
VERKAUFT Büro 1: 13,09 m² Büro 2: 9,18 m² Technik: 8,42 m² Gang: 8,83 m² VR: 2,72 m² WC: 3,01 m² FLÄCHE: 46,25 m²


Praxis 1.2.S
[04]
Fläche: 496,17 m²


Büro 1.3.S
[05]
VERKAUFT Eingang: 7,63 m² Umkleide: 4,86 m² Technik fein: 16,11 m² Technik grob: 16,29 m² Technik sehr grob: 16,61 m² Lager/Technik: 10,80 m² VR: 3,23 m² WC D: 3,37 m² WC H: 3,48 m² Aufenthalt: 11,21 m² Büro: 11,75 m² FLÄCHE: 105,34 m²
GESCHÄFTSFLÄCHEN
WOHNFLÄCHEN 30-50M²
WOHNFLÄCHEN 50-80M²
WOHNFLÄCHEN AB 80M²


Büro / Geschäft 1
[01]
Fläche: 95,66 m


Büro / Geschäft 2
[02]
Fläche: 346,02 m²


Büro 1.1.N
[03]
VERKAUFT Büro 1: 13,09 m² Büro 2: 9,18 m² Technik: 8,42 m² Gang: 8,83 m² VR: 2,72 m² WC: 3,01 m² FLÄCHE: 46,25 m²


Praxis 1.2.S
[04]
Fläche: 496,17 m²


Büro 1.3.S
[05]
VERKAUFT Eingang: 7,63 m² Umkleide: 4,86 m² Technik fein: 16,11 m² Technik grob: 16,29 m² Technik sehr grob: 16,61 m² Lager/Technik: 10,80 m² VR: 3,23 m² WC D: 3,37 m² WC H: 3,48 m² Aufenthalt: 11,21 m² Büro: 11,75 m² FLÄCHE: 105,34 m²


Büro / Geschäft 1
[01]
Fläche: 95,66 m


Büro / Geschäft 2
[02]
Fläche: 346,02 m²


Büro 1.1.N
[03]
VERKAUFT Büro 1: 13,09 m² Büro 2: 9,18 m² Technik: 8,42 m² Gang: 8,83 m² VR: 2,72 m² WC: 3,01 m² FLÄCHE: 46,25 m²


Praxis 1.2.S
[04]
Fläche: 496,17 m²


Büro 1.3.S
[05]
VERKAUFT Eingang: 7,63 m² Umkleide: 4,86 m² Technik fein: 16,11 m² Technik grob: 16,29 m² Technik sehr grob: 16,61 m² Lager/Technik: 10,80 m² VR: 3,23 m² WC D: 3,37 m² WC H: 3,48 m² Aufenthalt: 11,21 m² Büro: 11,75 m² FLÄCHE: 105,34 m²


Büro / Geschäft 1
[01]
Fläche: 95,66 m


Büro / Geschäft 2
[02]
Fläche: 346,02 m²


Büro 1.1.N
[03]
VERKAUFT Büro 1: 13,09 m² Büro 2: 9,18 m² Technik: 8,42 m² Gang: 8,83 m² VR: 2,72 m² WC: 3,01 m² FLÄCHE: 46,25 m²


Praxis 1.2.S
[04]
Fläche: 496,17 m²


Büro 1.3.S
[05]
VERKAUFT Eingang: 7,63 m² Umkleide: 4,86 m² Technik fein: 16,11 m² Technik grob: 16,29 m² Technik sehr grob: 16,61 m² Lager/Technik: 10,80 m² VR: 3,23 m² WC D: 3,37 m² WC H: 3,48 m² Aufenthalt: 11,21 m² Büro: 11,75 m² FLÄCHE: 105,34 m²


Büro / Geschäft 1
[01]
Fläche: 95,66 m


Büro / Geschäft 2
[02]
Fläche: 346,02 m²


Büro 1.1.N
[03]
VERKAUFT Büro 1: 13,09 m² Büro 2: 9,18 m² Technik: 8,42 m² Gang: 8,83 m² VR: 2,72 m² WC: 3,01 m² FLÄCHE: 46,25 m²


Praxis 1.2.S
[04]
Fläche: 496,17 m²


Büro 1.3.S
[05]
VERKAUFT Eingang: 7,63 m² Umkleide: 4,86 m² Technik fein: 16,11 m² Technik grob: 16,29 m² Technik sehr grob: 16,61 m² Lager/Technik: 10,80 m² VR: 3,23 m² WC D: 3,37 m² WC H: 3,48 m² Aufenthalt: 11,21 m² Büro: 11,75 m² FLÄCHE: 105,34 m²
GESCHÄFTSFLÄCHEN
WOHNFLÄCHEN 30-50M²
WOHNFLÄCHEN 50-80M²
WOHNFLÄCHEN AB 80M²


Büro / Geschäft 1
[01]
Fläche: 95,66 m


Büro / Geschäft 2
[02]
Fläche: 346,02 m²


Büro 1.1.N
[03]
VERKAUFT Büro 1: 13,09 m² Büro 2: 9,18 m² Technik: 8,42 m² Gang: 8,83 m² VR: 2,72 m² WC: 3,01 m² FLÄCHE: 46,25 m²


Praxis 1.2.S
[04]
Fläche: 496,17 m²


Büro 1.3.S
[05]
VERKAUFT Eingang: 7,63 m² Umkleide: 4,86 m² Technik fein: 16,11 m² Technik grob: 16,29 m² Technik sehr grob: 16,61 m² Lager/Technik: 10,80 m² VR: 3,23 m² WC D: 3,37 m² WC H: 3,48 m² Aufenthalt: 11,21 m² Büro: 11,75 m² FLÄCHE: 105,34 m²


Büro / Geschäft 1
[01]
Fläche: 95,66 m


Büro / Geschäft 2
[02]
Fläche: 346,02 m²


Büro 1.1.N
[03]
VERKAUFT Büro 1: 13,09 m² Büro 2: 9,18 m² Technik: 8,42 m² Gang: 8,83 m² VR: 2,72 m² WC: 3,01 m² FLÄCHE: 46,25 m²


Praxis 1.2.S
[04]
Fläche: 496,17 m²


Büro 1.3.S
[05]
VERKAUFT Eingang: 7,63 m² Umkleide: 4,86 m² Technik fein: 16,11 m² Technik grob: 16,29 m² Technik sehr grob: 16,61 m² Lager/Technik: 10,80 m² VR: 3,23 m² WC D: 3,37 m² WC H: 3,48 m² Aufenthalt: 11,21 m² Büro: 11,75 m² FLÄCHE: 105,34 m²


Büro / Geschäft 1
[01]
Fläche: 95,66 m


Büro / Geschäft 2
[02]
Fläche: 346,02 m²


Büro 1.1.N
[03]
VERKAUFT Büro 1: 13,09 m² Büro 2: 9,18 m² Technik: 8,42 m² Gang: 8,83 m² VR: 2,72 m² WC: 3,01 m² FLÄCHE: 46,25 m²


Praxis 1.2.S
[04]
Fläche: 496,17 m²


Büro 1.3.S
[05]
VERKAUFT Eingang: 7,63 m² Umkleide: 4,86 m² Technik fein: 16,11 m² Technik grob: 16,29 m² Technik sehr grob: 16,61 m² Lager/Technik: 10,80 m² VR: 3,23 m² WC D: 3,37 m² WC H: 3,48 m² Aufenthalt: 11,21 m² Büro: 11,75 m² FLÄCHE: 105,34 m²


Büro / Geschäft 1
[01]
Fläche: 95,66 m


Büro / Geschäft 2
[02]
Fläche: 346,02 m²


Büro 1.1.N
[03]
VERKAUFT Büro 1: 13,09 m² Büro 2: 9,18 m² Technik: 8,42 m² Gang: 8,83 m² VR: 2,72 m² WC: 3,01 m² FLÄCHE: 46,25 m²


Praxis 1.2.S
[04]
Fläche: 496,17 m²


Büro 1.3.S
[05]
VERKAUFT Eingang: 7,63 m² Umkleide: 4,86 m² Technik fein: 16,11 m² Technik grob: 16,29 m² Technik sehr grob: 16,61 m² Lager/Technik: 10,80 m² VR: 3,23 m² WC D: 3,37 m² WC H: 3,48 m² Aufenthalt: 11,21 m² Büro: 11,75 m² FLÄCHE: 105,34 m²
[04] Team
Unser Team
Sophie Gadermayr und Nathalie Kapl kennen dieses Projekt in- und auswendig - von den Grundrissplänen bis zur Ausstattung. Kein Call-Center, keine Warteschleife. Sie erreichen uns direkt.


Sophie Gadermayr
In Zusammenarbeit mit Reisetbauer Immobilien office@immoadd.at | +43 660 31 99 160
In Zusammenarbeit mit Reisetbauer Immobilien office@immoadd.at
+43 660 31 99 160
In Zusammenarbeit mit Reisetbauer Immobilien office@immoadd.at
+43 660 31 99 160


Nathalie Kapl
Reisetbauer Immobilien
kapl@reisetbauer.com | +43 664 46 15 445
Reisetbauer Immobilien
kapl@reisetbauer.com
+43 664 46 15 445
Reisetbauer Immobilien
kapl@reisetbauer.com
+43 664 46 15 445
Jetzt unverbindlich informieren - wir schicken Ihnen Grundrisse, Ausstattungsdetails und Preisliste direkt zu.


Macbeth Residence
|
Spring 2021
[05] Anfrage
Ihr nächster Schritt ins neue Zuhause

Sie suchen eine Eigentumswohnung mit urbanem Charakter - oder eine Geschäftsfläche mit täglicher Laufkundschaft direkt am Grünmarkt? Wir schicken Ihnen die passenden Unterlagen - kostenlos und unverbindlich.
Sie suchen eine Eigentumswohnung mit urbanem Charakter - oder eine Geschäftsfläche mit täglicher Laufkundschaft direkt am Grünmarkt? Wir schicken Ihnen die passenden Unterlagen - kostenlos und unverbindlich.
Hinterlassen Sie uns Ihre Kontaktdaten - wir melden uns innerhalb von 24 Stunden mit allen Unterlagen.